How to avoid these 9 condo showroom tricks

From extra-high ceilings to open-concept illusions, these are the 9 tricks to look out for in a condo show flat, and how to avoid these pitfalls when shopping for a home

Credit: Home & Decor
Share this article

Have you ever been so impressed by condominium showrooms – but noticed how some of them seem strangely different from the real deal?

For some reason, the living room just looks smaller than you remembered. Or the bathroom just looks rather underwhelming; something about it just looks less appealing than before. Well, the good news is, you probably aren’t the only person that has felt this way stepping into their newly completed home. 

If you are a first-time home buyer, it can be tough to navigate the process of purchasing a new showflat and knowing the pitfalls and tricks to look out for. After all, a showflat is specially designed to appeal to all your senses, be it the smell, the touch, or the overall look. It’s totally understandable if there are things that you might have overlooked or did not think about.

But what if, you knew exactly what to look out for, or even the tricks that are used to lure you in to buy?

A property purchase is one of, if not the biggest purchase of your life. It could very well make or break your future plans down the road. So why leave things up to ambiguity? You owe it to yourself to make a wise purchasing choice.

So read on as we uncover some of the techniques that are used to entice you in a showflat!

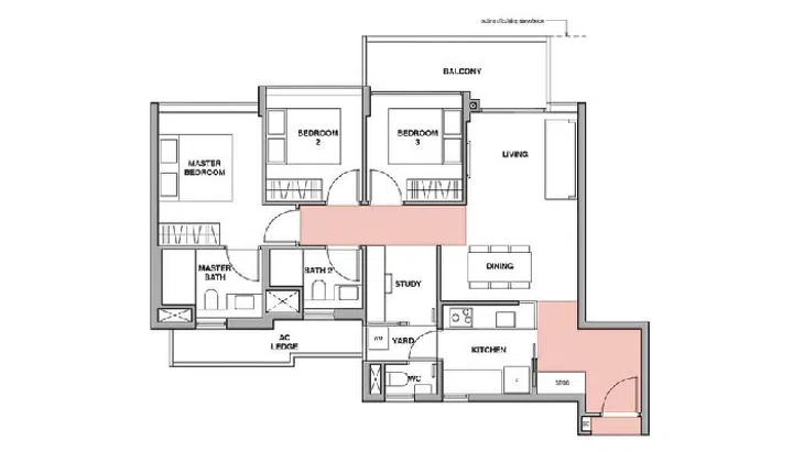
1. Always look at the floor plan

Credit: Stacked Homes

When you enter a condo showroom for the first time, it is so easy to get distracted by the soothing music, alluring smells, and attractive decor -- so much that you forget the most important thing at the end of the day: the floor plan. That’s because after taking out all the bells and whistles, you are truly left with the bare bones of the condo apartment.

Without all the interior design elements to distract you, you are able to see the flaws of the condo unit a whole lot easier, which is why you should always look at the floor plan first to see if it makes sense to you. Consider your lifestyle habits, how you utilise your current home, and what is important for you to have. Will this new layout work for you?


2. Look out for rooms that have been reconfigured in the showroom

Credit: Stacked Homes

One of the most common tricks that condo developers used in the past was taking out walls to make a space look bigger, resulting in what you might call an “optical illusion”.

But in 2015, the government ruled that any internal non-structural wall not built in the condo showroom has to have its position, thickness and width of that wall clearly marked on the floor and labelled.

Although it is now clearly marked out, the “optical illusion” still remains, as it is hard to envision the space with the wall even with the label.

What can you do about it?

Firstly, always look out for the tape to show where the walls have been taken out. Try to look at the condo showroom from as many angles as possible to see the space as objectively as possible.

In other words, don’t look at that space that has been carved out, but look from an angle that avoids it! That way, you can get an objective perspective of the area.

3. Ask about the materials used

Credit: Stacked Homes

There is no doubt that every condo showroom will be kept in pristine condition. This means that everything will be shown to you in its best light, with every marble-topped surface kept sparkling clean and floors gleaming to perfection. But what happens in the long run? How will these materials react to wear and tear?

As a smart buyer, you have to ask the right questions. For example, what material is used for the kitchen counters? Is it genuine marble or some sort of faux marble? Faux marble is much cheaper and has the advantage of being non-porous thanks to its gel coating. However, it is usually more prone to chipping and more susceptible to high heat.

Natural marble, on the other hand, is more porous but is heat-resistant and hardier. The moral of the story is to be aware of the exact materials that you are paying for. It’s better not to take things at face value as you might have buyer’s remorse later on.

Bonus tip: One rather unorthodox method to judge the quality of a developer’s work is to visit past condo developments that they have built. If you know friends/family staying in these condo developments, it wouldn’t hurt to give them a ring to find out more!

4. Touch everything in the condo showroom

Credit: Getty Images

To follow up on the previous point, you shouldn’t be shy to touch everything. And when we say touch, we mean, prod, pull, poke, and push everything. Although this is by no means a foolproof method, this allows you to have a better idea of the quality from the condo developer.

Try pulling out drawers: are they smooth and to your liking? Examine the ends of the cupboard and cabinets - if condo showroom has been around for a while, how are they holding up or already showing signs of wear and tear?

The sole purpose of a condo showroom is to impress you and draw you in to buy. So if you see signs of shoddy finishing this early on, we can’t imagine getting any better when it’s time for them to produce the units on a larger scale.

5. Check the ceiling height

Credit: Stacked Homes

Nowadays, many of the new condo developments offer higher ceiling units for the ground floor and/or the top floor units of the project. Naturally, when it comes to showing off a space, a high ceiling would no doubt make the space seem a lot bigger than it actually is.

For example, a ground floor condo unit could come with a ceiling height of 3.5 metres, and all other regular units above the ground floor come in at 2.9 metres. So, of course, it makes sense for the condo developer to show off the best unit possible.

But the problem is, this gives you a false sense of space if you are not looking at purchasing the ground floor unit. While this would be tough to gauge for yourself, remember to always ask for the actual condo showroom ceiling height to get some realistic expectations.

6. Double-check the size of the balcony or patio units

Credit: Stacked Homes

Similar to the tip on checking ground floor units, most of the time, a ground floor condo unit has a bigger PES (private enclosed space). These spaces are bigger than a regular balcony, and usually, there is an access gate that you can use to get in and out.

Just like the above, this could lead you into thinking that you have a bigger balcony area than you actually do.

So always remember to check up on this.

7. Look out for the interior design elements.

Credit: Stacked Homes

You must be tired of hearing this by now, but the interior design of the condo showroom is all about enhancing the qualities and hiding the imperfections of a unit. So as a savvy buyer, you will need to be aware of what is or is not included in your condo unit.

Thankfully, your job today is made easier because developers have to indicate whether they are “interior design” or “showroom treatment”. Just to help you out a little more, here is a list of what you can usually expect:

– Kitchen: Usually everything in a kitchen is included. Things like the cupboards, countertop, stove, fridge/freezer, washer/dryer, and oven.
– Bathrooms: This usually includes the mirror, cupboards, sink, toilet, shower, glass doors, taps, and shower heads.
– Bedrooms: Wardrobes and air-conditioner unit are the usual main inclusions. Check inside the wardrobes to see what kind of fittings are included too.
– Balcony/Patio: Floor tiles are included.
– Floor: Expect to get marble for living/dining, corridor, and entrance. Bedrooms can be a mix of tiles/timber. The bathroom can be marble/tiles and the kitchen will usually be tiled.
– Wall: The walls are usually blank white walls. All the wallpaper or coloured feature walls are usually not included.

8. Know your furniture

Credit: Stacked Homes

Another “clever” trick that interior designers will use is to play around with the furniture. For example, you will see smaller condo units having their dining table flush against the wall or pushed all the way to the corner. This creates the illusion of space in common areas. If you are comfortable with bench seating, this would be no issue, but for most people, they only realise this after moving a round dining table in, and wonder where all the space went.

Another trick from the condo developer would be to use a small couch in the living area. To prevent the furniture from getting roughed up, developers would usually place a “no sitting” sign there. But because you can’t try it out, you don’t realise how small the couch actually is.

One way to mitigate this is to measure the size of your furniture in your current home. Don’t be afraid to whip out a measuring tape at the condo show flat, and see if you can fit them in comfortably still.

9. Observe the placement of mirrors

Credit: Stacked Homes

These are one of the most common features in any newly-launched condo show flats today, which is unsurprising as mirrors and reflective elements can really make a space look a lot bigger than it is.

To be fair, it is something feasible that you could carry on into your new home. In fact, you could probably take some tips from here on where to place mirrors in your future home to make the space look bigger!

This article was originally published in Stacked Homes.

Tags

Share this article